Potenziale im Dach

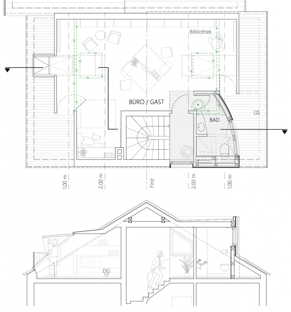
Grundriss | Systemschnitt

Potenziale im Dach

Das Dach, ein ganz archetypisches Element und der Gipfel jeden Hausbaues, wird leider oftmals in seinen räumlichen Qualitäten unterschätzt. Fensterlos, eng und im Sommer unerträglich warm zieht hier meist höchstens Krempel ein, der im Keller keinen Platz mehr gefunden hat. Wenn man noch genau so einen Dachraum in petto hat, lohnt es sich selbst einmal aufs Dach zu steigen. Neben verstaubten Kisten liegt hier enormes Potenzial zur Nachverdichtung.

Bei diesem Reihenendhaus aus den 70er Jahren mit Waschgelegenheit unter der Dachschräge folgte der Entwurf der Gaube dem Motto ‚form follows function‘. Die Funktion, in diesem Falle die minimalistischen Anforderungen an ein Duschbad, wird schwungvoll in Szene gesetzt. Während die Gaube einen ganz neuen Raum schafft lassen zwei tiefgezogene Panoramafenster den alten Dachraum in völlig neuem Licht erscheinen. Für den literaturliebenden Bauherrn ist ein attraktiver Arbeitsraum entstanden, der darüber hinaus auch als komfortables Gästezimmer genutzt werden kann.

Projekt: Ausbau | Gaube

Bad 3,70 m2 | Arbeitszimmer 26,30 m2